- Producent:
- Kamika Instruments
PRZEZNACZENIE
Do automatycznego pomiaru w warunkach laboratoryjnych uziarnienia grubych kruszyw od 1 do 130 mm
Do pełnej symulacji pomiarów według sił mechanicznych.
Do optymalizacji procesu mielenia czy doboru mieszanek.
Do określania kształtu ziaren.
Przyrząd może być wykonany w wersji trójwymiarowej, wówczas ma takie same możliwości jak AWK 3D
METODA POMIARU
Strumień promieniowania podczerwonego lub laserowego w czujniku jest rozpraszany przez przelatujące przez strefę pomiaru kruszywo. Układ pomiarowy składa się z wielokanałowego układu optycznego, który umożliwia przestrzenny pomiar cząstki w trzech kierunkach. Każdemu ziarnu odpowiada impuls elektryczny proporcjonalny do wielkości ziarna. Zbiór ziaren jest pierwotnie mierzony na 4096 klas wymiarowych i następnie przekształcony (kalibrowany) na 256 klas dostępnych dla użytkownika. Metoda ta charakteryzuje się olbrzymią powierzchnią pomiarową „s” x 300 mm o jednakowej czułości i specjalnym dozownikiem mogącym pomieścić kilkanaście kilogramów materiału mineralnego (MM). Wymiar „s” powierzchni pomiarowej zależy od rodzaju zastosowanej optyki i może wynosić 110, 160 lub 190 mm.
SPOSÓB POMIARU
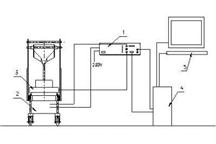
Analizator AWK B wyposażony jest w elektroniczny blok pomiarowy [1], do którego podłączone są: skrzynka sterowania elektrycznego [2], czujnik pomiarowy [3] i komputer typu desktop [4] ze specjalnym interface.Całość sterowna jest z klawiatury [5]. Po zakończonym pomiarze, który jest automatycznie zapisany w pamięci komputera ustawienia analizatora wracają do stanu początkowego.
Część robocza analizatora zbudowana jest w postaci wózka, gdzie na sztywnej ramie ze stali nierdzewnej [6] zawieszona jest skrzynka sterująca [2] wyposażona w siłownik elektryczny [7]. Siłownik [7] za pomocą popychacza [8] pochyla rynnę [9] zawieszoną na ułożyskowanym pręcie [10]. Na ramie [6] na dwóch podporach leży czujnik pomiarowy [3] z wlotem [11] o przekroju ok. 200 x 300 mm. Rynna [9] jest wyposażona dodatkowo w wibrator [12]. Podczas procesu pomiarowego wibrator [12] stopniowo osiąga drgania maksymalne i następnie rynna [9] zostaje pochylona do położenia dolnego. Wówczas cały MM zsuwa się z rynny [9] przez wlot [11] pod analizator. Intensywność zsuwania MM jest regulowana za pomocą komputera [4].
CHARAKTERYSTYKA
- zakres pomiarowy 1 - 130 mm
- ilość klas pomiarowych 256
- źródło światła dioda Infrared lub dioda laserowa
- zasilanie 230 V AC, 50 Hz
- temperatura użytkowania 278 do 313 K
- wymiary czujnika pomiarowego 1500*1020*400 mm
KOMPLETACJA
- elektroniczny blok pomiarowy AWK
- czujnik pomiarowy z systemem dozującym
- skrzynka sterowana elektrycznego
- karta A/C
- komputer typu notebook
- zestaw oprogramowania w w środowisku MS Windows
- zestaw kabli
Skontaktuj się z dystrybutorem
Dystrybutor
KAMIKA Instruments Sp. z o.o.
- Adres: Strawczyńska 16, 01-473 Warszawa
-
Nr telefonu: +48 22-666-85-68
Nr telefonu: +48 22-666-93-32
-
Faks: +48 22-666-85-68; +48 22-666-93-32
- E-mail: info@kamika.pl
- WWW: www.kamika.pl
Przy kontakcie powołaj się na portal laboratoria.xtech.pl
